4. Bài 4. Bản vẽ lắp

Người công nhân căn cứ vào đâu để lắp ráp sản phẩm đúng theo yêu cầu kĩ thuật?

Lựa chọn câu để xem lời giải nhanh hơn

CH trang 21

Người công nhân căn cứ vào đâu để lắp ráp sản phẩm đúng theo yêu cầu kĩ thuật?

Phương pháp giải:

Dựa vào hiểu biết kiến thức của bản thân

Lời giải chi tiết:

Người công nhân căn cứ vào bản vẽ lắp để lắp ráp sản phẩm đúng theo yêu cầu kĩ thuật.

CH trang 22

Nội dung bản vẽ lắp gồm những gì?

Phương pháp giải:

Đọc phần nội dung của bản vẽ lắp để xác định các nội dung của bản vẽ lắp.

Lời giải chi tiết:

Nội dung bản vẽ lắp gồm:

  • Khung tên: tên sản phẩm, tỉ lệ bản vẽ, tên người thiết kế, nơi thiết kế, …
  • Bảng kê: Liệt kê tất cả các chi tiết của sản phẩm (số thứ tự vị trí, tên gọi, số lượng, vật liệu, …)
  • Hình biểu diễn: gồm các hình chiếu, hình cắt diễn tả hình dạng, vị trí, cách thức lắp ghép các chi tiết với nhau.
  • Kích thước: gồm kích thước chung (dài, rộng, cao) của sản phẩm; kích thước lắp ghép giữa các chi tiết, kích thước xác định vị trí giữa các chi tiết,…

CH trang 23 KP1

Khung tên của bản vẽ lắp Hình 4.3 cho em biết những nội dung gì?

Phương pháp giải:

Quan sát hình 4.3 để xác định các nội dung có trong hình 4.3

Lời giải chi tiết:

Khung tên: tên sản phẩm, tỉ lệ bản vẽ, tên người thiết kế, nơi thiết kế, …

  • Tên sản phẩm: Cụm nối ống
  • Tỉ lệ: 1:1
  • Nơi thiết kế: Công ty S

CH trang 23 KP2

Em tìm hiểu số lượng, vật liệu của một chi tiết trong bản vẽ lắp ở đâu? Lấy một ví dụ cụ thể trong bản vẽ lắp Hình 4.3.

Phương pháp giải:

Quan sát bảng kê ở hình 4.3

Lời giải chi tiết:

Em tìm hiểu số lượng, vật liệu của một chi tiết trong bản vẽ lắp ở bảng kê. 

VD: Đầu nối có số lượng 2, vật liệu thép.

CH trang 23 KP3

Hãy mô tả trình tự tháo, lắp sản phẩm Hình 4.3.

Phương pháp giải:

Dựa vào thứ tự các số để xác định trình tự tháo lắp của sản phẩm.

Lời giải chi tiết:

Trình tự lắp: 1 – 2 – 3 – 4.

Trinh tự tháo: 4 – 3 – 2 – 1.

CH trang 24 LT

Đọc bản vẽ lắp Hình 4.7 theo trình tự các bước ở Bảng 4.1.

Phương pháp giải:

Đọc bản vẽ lắp hình 4.7 như mẫu bảng 4.1

Lời giải chi tiết:

1. Khung tên

  • Tên sản phẩm: Tay nắm cửa
  • Tỉ lệ: 1:1
  • Nơi thiết kế: Công ty T

2. Bảng kê

 

3. Hình biểu diễn

  • Tên các hình chiếu: Hình chiếu cạnh.
  • Tên gọi hình cắt: Hình cắt bằng.

4. Kích thước

  • Kích thước chung: 62, Ø56.
  • Kích thước lắp ghép: Ø48, M6, Ø3,2.

5. Phân tích chi tiết

Tô màu cho các chi tiết

6. Tổng hợp

  • Trình tự lắp: 1 – 4 – 3 – 2
  • Trình tự tháo: 2 – 3 – 4 – 1
  • Công dụng: mở/đóng cửa bằng tay.

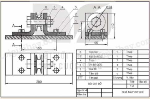
CH trang 24 VD

Sưu tầm một sản phẩm đơn giản và giải thích cách thức lắp ghép giữa các chi tiết của sản phẩm đó.

Phương pháp giải:

Sưu tầm một bản vẽ lắp đơn giản rồi xác định trình tự tháo lắp của sản phẩm đó.

Lời giải chi tiết:

 Bản vẽ sưu tầm

 

– Trình tự lắp ghép: 1 – 2 – 3 – 6 – 4 – 5.

– Giải thích: Tấm đỡ và giá đỡ được ghép với nhau nhòa 4 Vít M10x30, lắp con lăn vào trục và ghép trục vào giá đỡ nhờ đai ốc M22.

TẢI APP ĐỂ XEM OFFLINE