3. Bài 3. Bản vẽ chi tiết

Hình 3.1 là một bản vẽ chi tiết, em hãy cho biết trên bản vẽ đó có những gì?

Lựa chọn câu để xem lời giải nhanh hơn

CH trang 20

Hình 3.1 là một bản vẽ chi tiết, em hãy cho biết trên bản vẽ đó có những gì?

Phương pháp giải:

Quan sát hình 3.1 để đọc các thông tin trên bản vẽ.

Lời giải chi tiết:

– Các thông tin về bản vẽ:

+ Yêu cầu: làm tù cạnh và mạ kẽm

+ Đường kính vòng ngoài: 14 mm

+ Đường kính vòng trong: 8 mm

+ Ngày vẽ: 04/06, người vẽ Lê Thị A

+ Ngày kiểm tra: 04/06, người kiểm tra Trần Văn B

+ Vật liệu: thép

+ Tờ số 3

CH trang 21

Quan sát Hình 3.3 và cho biết tên gọi của chi tiết được biểu diễn trong hình là gì; hãy mô tả hình dạng, kích thước và các yêu cầu kĩ thuật của chi tiết đó.

 

Phương pháp giải:

Quan sát hình 3.3, phần đóng khung để đọc tên chi tiết và xác định hình dạng của chi tiết đầu côn.

Lời giải chi tiết:

– Tên gọi chi tiết: đầu côn

– Hình dạng: nón cụt

– Kích thước:

+ Đường kính vòng ngoài: Ø30 mm

+ Đường kính vòng trong: Ø20 mm

+ Đường kính khoét: Ø10 mm

+ Chiều cao: 40 mm

+ Độ dày đáy: 10 mm

– Yêu cầu kĩ thuật: làm tù cạnh, mạ kẽm.

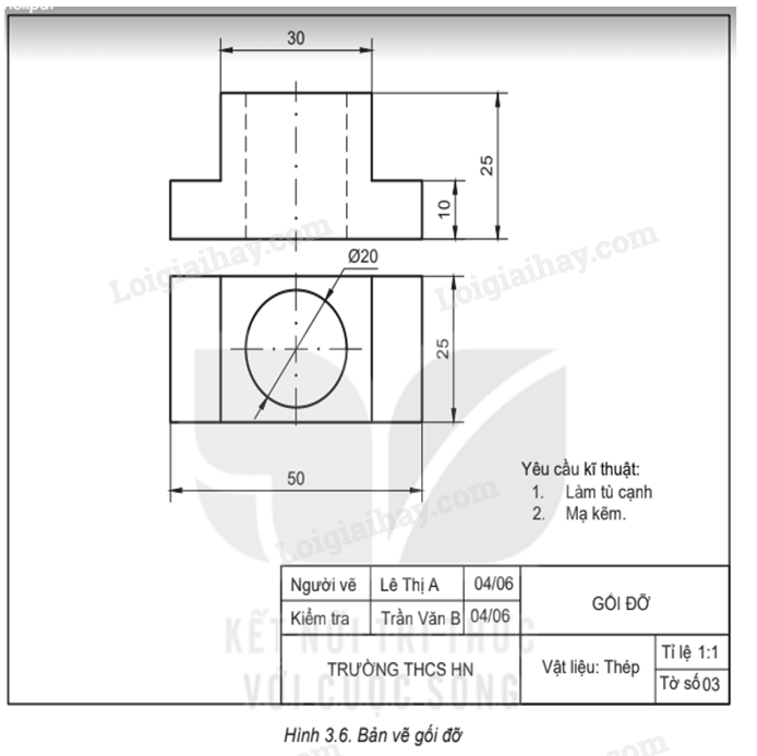
CH trang 23

Đọc bản vẽ chi tiết gối đỡ (Hình 3.6) theo trình tự trên Bảng 3.1.

 

Phương pháp giải:

Quan sát hình 3.6 và bảng 3.1 để đọc các nội dung theo bảng 3.1

Lời giải chi tiết:

TẢI APP ĐỂ XEM OFFLINE