1. Bài 8. Bản vẽ kĩ thuật và tiêu chuẩn trình bày bản vẽ kĩ thuật

Hình 8.1 biểu diễn hình dáng và kích thước của một chiếc bàn. Em hãy mô tả chiếc bàn đó. Trong quá trình mô tả, em có gặp khó khăn gì không? Hãy quan sát và cho biết trên các Hình 8.2 a, b, c, d thể hiện hoạt động gì và liên quan như thế nào đến bản vẽ kĩ thuật.

Lựa chọn câu để xem lời giải nhanh hơn

Câu hỏi tr 45

Mở đầu

Hình 8.1 biểu diễn hình dáng và kích thước của một chiếc bàn. Em hãy mô tả chiếc bàn đó. Trong quá trình mô tả, em có gặp khó khăn gì không?

Phương pháp giải:

Quan sát, suy luận logic

Lời giải chi tiết:

Kích thước của bàn là

– Cao 800

– Rộng mặt bàn 580

– Chiều dài mặt bàn 1200

– Độ dày mặt bàn 60

– Chiều rộng chân bàn là 480

– Khoảng cách từ chân bàn đến ngăn kéo là 500

 – Khoảng trống giữa hai chân bàn là 1100…


Câu hỏi tr 46

Khám phá

1. Hãy quan sát và cho biết trên các Hình 8.2 a, b, c, d thể hiện hoạt động gì và liên quan như thế nào đến bản vẽ kĩ thuật.

Phương pháp giải:

Quan sát, liên hệ thực tiễn

Lời giải chi tiết:

Hình 8.2a: Nhà thiết kế vẽ sơ đồ, phác họa, thiết kế bản vẽ kĩ thuật

Hình 8.2b: Nhà thiết kế trao đổi, đóng góp ý kiến cho bản vẽ

Hình 8.2c: Công nhân đọc, đối chiếu bản vẽ liên quan đến sản phẩm khi thiết kế

Hình 8.2d: Kĩ sư thiết kế sản phẩm dựa vào bản vẽ

2. Hãy cho biết vai trò của bản vẽ mặt bằng nhà ở (Hình 8.3).

Phương pháp giải:

Quan sát, suy luận logic

Lời giải chi tiết:

Bản vẽ mặt bằng nhà ở có vai trò rất lớn trong đời sống. Nó cho biết

– Diện tích của mặt bằng trong thi công, thiết kế công trình là hình ảnh quan trọng nhất trên một bản vẽ. 

– Bản vẽ cho biết kích thước và cách bố trí các phòng, phương tiện và thể hiện sự tiện ích trong phòng, lối đi lại cũng như vị trí, kích thước và độ dày của các chi tiết, giúp kỹ sư và nhân viên xây dựng bố trí nội thất một cách chính xác nhất.


Câu hỏi tr 47

Khám phá

Quan sát Hình 8.4 và cho biết cách chia các khổ giấy chính từ khổ A0.

Phương pháp giải:

Quan sát, suy luận logic, liên hệ thực tế

Lời giải chi tiết:

– Gấp đôi khổ giấy A0 ta được khổ giấy A1.

– Gấp đôi khổ giấy A1 ta được khổ giấy A2.

– Gấp đôi khổ giấy A2 ta được khổ giấy A3.

– Gấp đôi khổ giấy A3 ta được khổ giấy A4.

Khám phá

Em hãy quan sát Hình 8.5 và cho biết cách vẽ khung vẽ.

Phương pháp giải:

Quan sát, suy luận logic

Lời giải chi tiết:

Khung bản vẽ sẽ được vẽ bằng nét liền đậm cách cạnh khổ giấy phải 20 mm và cách ba mép còn lại mỗi mép 10 mm.


Câu hỏi tr 48

Khám phá

Em hãy mô tả các kích thước và nội dung của khung tên.

Phương pháp giải:

Quan sát, suy luận logic

Lời giải chi tiết:

Khung tên ghi các nội dung về quản lí bản vẽ, đặt ở góc phải phía dưới bản vẽ. Kích thước của toàn bộ khung tên là 32 x 140 mm. Kích thước cụ thể của nội dung khung tên như sau:

(1) Tên gọi của vật thể: chiều rộng 16 mm, chiều dài 70 mm

(2) Tên vật liệu: chiều rộng 8 mm, chiều dài 30 mm

(3) Tỉ lệ của bản vẽ: chiều rộng 8 mm, chiều dài 20 mm

(4) Kí hiệu số bài tập: chiều rộng 8 mm, chiều dài 20 mm

(5) Họ và tên người vẽ: chiều rộng 8 mm, chiều dài 30 mm

(6) Ngày lập bản vẽ: chiều rộng 8 mm, chiều dài 20 mm

(7) Chữ kí của người kiểm tra: chiều rộng 8 mm, chiều dài 30 mm

(8) Ngày kiểm tra: chiều rộng 8 mm, chiều dài 20 mm

(9) Tên trường, lớp (đơn vị): chiều rộng 16 mm, chiều dài 70 mm.

Câu hỏi tr 49

Khám phá

Quan sát Hình 8.7 và cho biết tên gọi của các nét vẽ

Phương pháp giải:

Quan sát, tra cứu

Lời giải chi tiết:

A. Nét liền mảnh

B. Nét liền mảnh

C. Nét liền mảnh

D. Nét lượn sóng

E. Nét gạch dài chấm mảnh

F. Nét đứt mảnh

G. Nét liền đậm

H. Nét liền đậm

I. Nét gạch dài chấm mảnh


Câu hỏi tr 50

Khám phá

Hình 8.8 vẽ các chữ cái và chữ số theo tiêu chuẩn. Kích thước ô li là 1 mm x 1mm. Hãy quan sát và rút ra kết luận về:

– Khổ chữ

– Kiểu chữ


Phương pháp giải:

Quan sát, tra cứu

Lời giải chi tiết:

– Kiểu chữ: kiểu đứng

– Khổ chữ: đạt tiêu chuẩn, khổ 10 mm


Câu hỏi tr 51

Khám phá

1. Quan sát Hình 8.9 và cho biết:

– Tên gọi của các phần tử ghi kích thước tương ứng với kí hiệu A, B, C, D.

– Chiều rộng và chiều cao của vật thể.


Phương pháp giải:

Quan sát, suy luận logic

Lời giải chi tiết:

A. Đường kích thước

B. Chữ số kích thước

C. Đầu mút đường kích thước

D. Đường gióng kích thước

Chiều rộng của vật thể là 70 mm, chiều cao là 80 mm.

2. Quan sát Hình 8.10 và phát biểu quy luật về vị trí và hướng của con số kích thước so với đường kích thước.

Phương pháp giải:

Quan sát, suy luận logic

Lời giải chi tiết:

Quy luậtvề vị trí và hướng của con số kích thước so với đường kích thước:

– Đối với kích thước góc:

+ Nếu đường kích thước thẳng đứng, ta nhận thấy đầu con số kích thước hướng sang trái. 

+ Đối với các đường kích thước nghiêng (so với đường nằm ngang của bản vẽ), con số kích thước được ghi sao cho, nếu ta quay đường kích thước và con số kích thước một góc nhỏ hơn 90 độ đến vị trí đường kích thước nằm ngang thì đầu con số kích thước hướng lên trên.

– Đối với kích thước độ dài: quy ước lấy đơn vị đó là mm, trên bản vẽ không ghi đơn vị đo.

Vận dụng

1. Trên khổ giấy A4, hãy vẽ khung bản vẽ, khung tên và viết chữ vào khung tên

Phương pháp giải:

Vẽ và thực nghiệm lại

Lời giải chi tiết:

HS tự vẽ lại trên khổ giấy A4, theo đúng kích thước tiêu chuẩn.

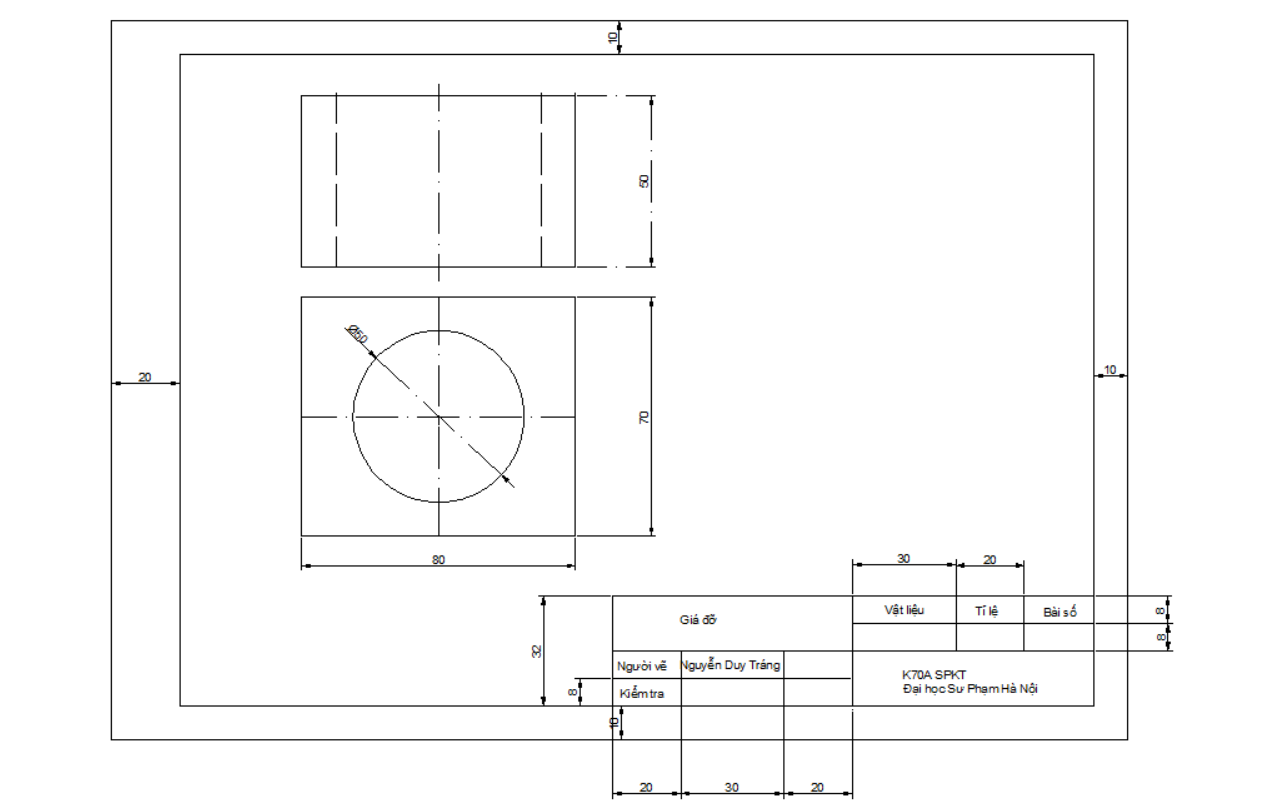
2. Vẽ lại Hình 8.11 bao gồm cả phần ghi kích thước và khổ giấy đã chuẩn bị ở trên, theo đúng tiêu chuẩn.

Phương pháp giải:

Quan sát hình vẽ

Lời giải chi tiết:

Học sinh vẽ lại như hình vẽ dưới đây

TẢI APP ĐỂ XEM OFFLINE

Công nghệ trồng trọt

Thiết kế và công nghệ