Giải bài 3 trang 75 Sách bài tập Toán 6 – Chân trời sáng tạo

Tính chu vi của hình bên, biết BCDE là hình chữ nhật có diễn tích 135({m^2}), BC = 15 m, ABGK là hình chữ nhật có diện tích 180 mét vuông, BE = EG.

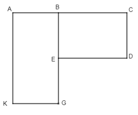
Đề bài

Tính chu vi của hình bên, biết BCDE là hình chữ nhật có diễn tích 135\({m^2}\), BC = 15 m, ABGK là hình chữ nhật có diện tích 180 \({m^2}\), BE = EG.

Phương pháp giải – Xem chi tiết

Bước 1: Tính BE dựa vào diện tích BCDE và cạnh BC đã biết

Bước 2: Tính các cạnh còn lại

Bước 3: Tính chu vi

Lời giải chi tiết

Ta có: diện tích hình chữ nhật BCDE là BC. BE = 135 (\({m^2}\)), mà BC = 15 m.

\( \Rightarrow \)BE = 135 : 15 = 9 (m)

Lại có:

 EG = BE; AK = BG = 2BE 

 \( \Rightarrow \) EG = 9m; AK = 18m 

Mà diện tích hình chữ nhật ABGK là AB. AK = 180 (\({m^2}\))

\( \Rightarrow \) AB = 180 : 18 = 10 (m)

Vậy chu vi của hình đã cho là:

P = AK + AB + BC + CD + DE + EG + KG = 18 + 10 + 15 + 9 + 15 + 9 + 10 = 86 (m)

TẢI APP ĐỂ XEM OFFLINE

Sách bài tập Toán 6 Tập 1 – Chân trời sáng tạo

Sách bài tập Toán 6 Tập 2 – Chân trời sáng tạo